Продается 1-на комнатная квартира Квартира г. Ереван р-н Ачапняк
63000$
54577€ 5060992₽ 23748480֏
Номер объявления:3504
Скажите, пожалуйста, что нашли это объявление на TUN.AM
Имя: Nare
Адрес: 1 Քըրք Քըրքորյան փողոց
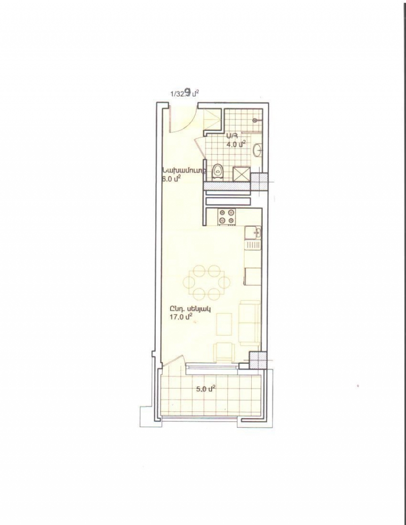
| Комнаты | 1 | |
| Общая площадь (м²) | 33 | |
| Кухня (м²) | 5 | |
| Статус квартиры | новостройка | |
| Этаж | 14 | |
| Этажей в доме | 16 | |
| Пассажирских лифтов | 2 | |
| Балкон | 1 | |
| Окна | двор | |
| Ремонт | нет | |
| Парковка | стихийная (двор) |
| Год постройки | 2024 | |
| Высота потолков (м) | 3 | |
| Тип дома | монолитный | |
| Возможность провести газ | есть | |
| Электричество | есть | |
| Новые водопроводные трубы | есть |
| Грузовых лифтов | 2 | |
| Стеклопакеты | есть | |
| Металлическая дверь | есть |































Ул. Овсепа Эмина 2
Ул. Овсепа Эмина 2
Ул. Овсепа Эмина 2
Ул. Капанцяна 10
Ул. Капанцяна 10
Ул. Капанцяна 10
Ул. Капанцяна 10
Ул. Капанцяна 10
Ул. Капанцяна 10
Կոմիտասի պողոտա, 19/1